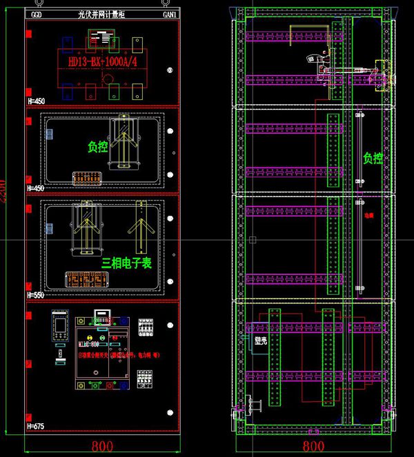
国网标准版 光伏并网柜结构CAD图打包.pdf 约2.78MB(压缩后以实际为准),该资料所属行业范围建筑建设。
简要:CAD,pdf,国网,标准版,网柜└── 国网标准版,光伏并网柜结构CAD图打包! └── 光伏并网柜-结构图(国网标准).dwg……

国网标准版 光伏并网柜结构CAD图打包.pdf 约2.78MB(压缩后以实际为准),该资料所属行业范围建筑建设。
简要:CAD,pdf,国网,标准版,网柜└── 国网标准版,光伏并网柜结构CAD图打包! └── 光伏并网柜-结构图(国网标准).dwg……

声明:资源收集自网络分享,所提供的电子版文档仅供学习参考,如侵犯您的权益,请联系我们处理。
不能下载?报告错误